--   |  设为首页

帮忙装修网

中山

[切换]

中山142平的新中式大宅装修,符合屋主儒雅的气质

来自:中山帮忙装修网 日期:2022-08-03 16:22:04 217460 次 分享到:
导读:
142平米的新中式风四居室案例,符合屋主本人那种儒雅的气质。中山帮忙装修网公司分享。

今天中山帮忙装修网公司分享的是一套建筑面积142平米的新中式风四居室案例,据屋主所说,房子在装完之后,成了小区邻居频繁参观的一户,大家都说这种有诗意的家,太符合屋主本人那种儒雅的气质啦,到底这套房子长什么样子,一起来看看吧!

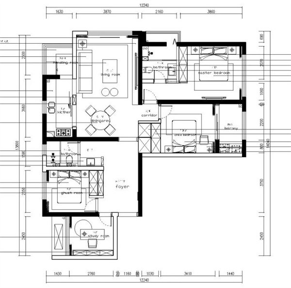
20220801_152807_081.jpg

平面布置图

20220801_152807_082.jpg

入户空间是一个比较大的走廊,设计师在其中一侧摆放一个端景台,搭配一幅圆形的装饰画和创意的绿植摆设,让人感觉禅意满满。

20220801_152807_083.jpg

而玄关走廊的另一侧是做了嵌入式的鞋柜,还把客卫的洗手台给放在了门外,浅灰色为主的空间加上深木色的柜子,看起来简洁又大气。

20220801_152807_084.jpg

走过玄关就到了客餐厅合一的空间,玄关和客餐厅的地面都是铺贴了灰色的地砖,还加上了黑色的波导线,让整个空间看起来更有现代感。

20220801_152807_085.jpg

红棕木色的餐桌椅和背景墙上的挂画都是很有中式风感觉的家具、软装,餐厨之间用玻璃门作为隔断,让光线可以流通起来。

20220801_152807_086.jpg

客厅的沙发背景墙中间做了硬包的造型,然后两侧对称做个木饰板造型,这种对称的美感看着很舒服。阳台和客厅之间也加了木栅栏隔断,带有淡淡文艺感。

20220801_152807_087.jpg

其实新中式风格就是把现代风的简洁和中式风的儒雅给融合了起来,齐家小菜相信如果你家也这样装,绝对会受到小区邻居夸赞的。

20220801_152807_088.jpg

主卧室的衣柜和床头背景墙延续了这种带有金属边框的柜门造型,中间还有着淡淡的山水画,床和床头柜的款式也很好看,无一不展示屋主对于中式风的喜爱。

20220801_152807_089.jpg

到了儿童房这个空间,为了更贴合孩子的喜好,选择的搭配就偏向于欧式风格了,硬包的背景墙搭配软包的床头靠背,整体配色也更为清新、可爱。

20220801_152807_090.jpg

书房由一张书桌和满墙的书柜所组成,书柜两侧做开放式的展示架,把书籍放这里也更方便拿取,中间柜门有着花鸟图案,让书房更有墨韵书香。

装修预算不够?快来申请装修贷款!月息低至2.5厘。帮忙装修网为解决业主的装修资金难题,特与银行合作推出“装修贷”,一站轻松办理:18824725983 吴先生

长按二维码关注"帮忙装修网",了解更多装修资讯↓↓↓

或拨打免费热线:13822775923

已成功招标53521